Haus 17 und 18

Architekt
Inneneinrichtung
Adresse
Woinovichgasse 28 und 30
Verbaute Fläche
34 m²

Haus 17 – 18
© Laimgruber

Haus 17 – 18
© Laimgruber

Wohnraum Erdgeschoß
Martin Gerlach jun. © Wien Museum

Wohn/Schlafraum Obergeschoß
Martin Gerlach jun. © Wien Museum

Straßenansicht
Julius Scherb © Wien Museum

Häuserzeile mit Gartenfassade
Martin Gerlach jun. © Wien Museum
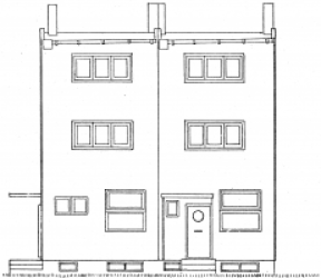
Die schmalen dreigeschoßigen Häuser von Karl Augustinus Bieber und Otto Niedermoser stehen in einer Reihe mit den Häusern von Walter Loos (Haus 19 / 20), Eugen Wachberger (Haus 21 / 22) und Clemens Holzmeister (Haus 23 / 24), heben sich durch den zurückgestuften zweiten Stock jedoch deutlich von den zweigeschoßigen Nachbarbauten ab. Der Architekt und international anerkannte Designer Karl Augustinus Bieber, der neben den Reihenhäusern in der Werkbundsiedlung in Wien kein weiteres Bauwerk realisieren konnte, war ab dem Jahr 1930 künstlerischer Berater der Firma Philips in Eindhoven (NL). Der Architekt und Bühnenbildner Otto Niedermoser hatte über Jahrzehnte an der Wiener Kunstgewerbeschule unterrichtet und zeichnete für die Errichtung der Klasse für Bühnenbild verantwortlich. Beide Architekten waren auch als Assistenten von Oskar Strnad an der Kunstgewerbeschule tätig.
Der Eingang zum Eckhaus Nr. 17 an der Seitenfront ist über den Garten zu erreichen, während die Erschließung des angrenzenden Hauses Nr. 18 von der Straße aus erfolgt. Bis auf die unterschiedliche Eingangssituation weisen die beiden Häuser einen völlig identen Grundriss auf. Der straßenseitige Wirtschaftstrakt ist dem gegen den Garten orientierten Wohnzimmer gegenübergestellt. Eine ungefähr in der Mitte des Hauses liegende eiserne Wendeltreppe mit Linoleumbelag (vergleichbar mit jener in den Häusern von Margarete Schütte-Lihotzky, Haus 61 / 62) erschließt die einzelnen Geschoße. Im ersten Stock dient die mittig gelegene Treppe samt Flur und einem Badezimmer als Trennung der garten- bzw. straßenseitig angeordneten beiden Schlafräume. Der gegen den Garten abgetreppte zweite Stock beherbergt eine Kammer, die sich über eine zweiflügelige Tür zur vorgelagerten Terrasse öffnet. Die in Ost-West-Richtung orientierten Häuser werden gegen die Straße zu in den Obergeschoßen über je ein dreiteiliges horizontales Fenster belichtet, an der Gartenseite ist dem Schlafzimmer im ersten Obergeschoß ein kleiner Balkon vorgelagert. Vom Wohnzimmer, das ebenso wie das Schlafzimmer mit einem zweiflügeligen Fenster versehen ist, gelangt man über eine oben verglaste Tür über einige Stufen seitlich hinunter in den Garten. Die Terrasse und der Balkon sind jeweils mit einem Vorhang versehen, um den privaten Freiraum vor neugierigen Einblicken zu schützen.
Die auf schmalen, langen Bauparzellen errichteten Häuser weisen bei einer verbauten Grundfläche von jeweils nur 34 m² eine Wohnfläche von je 71 m² auf (Vergleich André Lurçat, Haus 25 / 26 / 27 / 28: 38 m² / 68 m²). Der Entwurf von Bieber und Niedermoser hatte ursprünglich eine völlig freie Raumeinteilung in den Geschoßen vorgesehen, die jedoch aufgrund der vorgeschriebenen einheitlichen Bauausführung entfallen musste. Haus Nr. 17 wurde von Otto Niedermoser mit Möbeln von Anton Herrgesell sowie mit Thonet-Stühlen ausgestattet, für die Inneneinrichtung von Haus Nr. 18 zeichnete Karl Bräuer, der langjährige Mitarbeiter Josef Hoffmanns, verantwortlich.
Text: Anna Stuhlpfarrer
Historische Grundrisse

Erdgeschoß Haus 17 – 18

Obergeschoß Haus 17 – 18

Dachgeschoß Haus 17 – 18